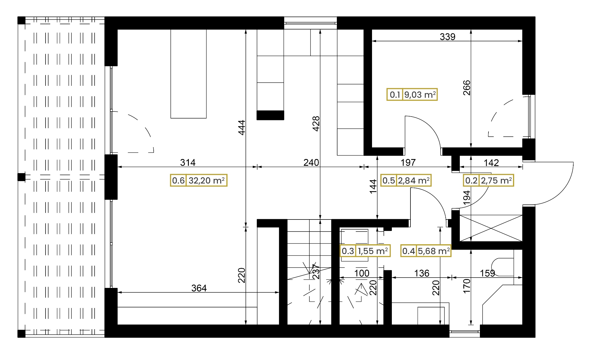
| Pomieszczenie | Powierzchnia | |
| 0.1 | Pokój 1 | 9.03 m2 |
| 0.2 | Wiatrołap | 2.75 m2 |
| 0.3 | Pomieszczenie gospodarcze | 1.55 m2 |
| 0.4 | Łazienka | 5.68 m2 |
| 0.5 | Korytarz | 2.84 m2 |
| 0.6 | Pokój dzienny / aneks kuchenny | 32.2 m2 |
| SUMA: | 54.05 m2 |
| Pomieszczenie | Powierzchnia | |
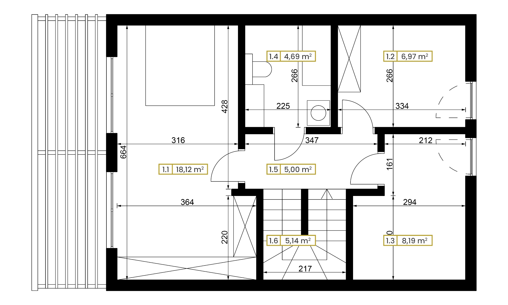
| 1.1 | Pokój 1 | 18.12 m2 |
| 1.2 | Pokój 2 | 6.97 m2 |
| 1.3 | Pokój 3 | 8.19 m2 |
| 1.4 | Łazienka | 4.69 m2 |
| 1.5 | Korytarz | 5 m2 |
| 1.6 | Schody | 5.14 m2 |
| SUMA: | 48.01 m2 |
| Pomieszczenie | Powierzchnia | |
| 0.1 | Pokój 1 | 9.03 m2 |
| 0.2 | Wiatrołap | 2.75 m2 |
| 0.3 | Pomieszczenie gospodarcze | 1.55 m2 |
| 0.4 | Łazienka | 5.68 m2 |
| 0.5 | Korytarz | 2.84 m2 |
| 0.6 | Pokój dzienny / aneks kuchenny | 32.2 m2 |
| SUMA: | 54.05 m2 |
| Pomieszczenie | Powierzchnia | |
| 1.1 | Pokój 1 | 18.12 m2 |
| 1.2 | Pokój 2 | 6.97 m2 |
| 1.3 | Pokój 3 | 8.19 m2 |
| 1.4 | Łazienka | 4.69 m2 |
| 1.5 | Korytarz | 5 m2 |
| 1.6 | Schody | 5.14 m2 |
| SUMA: | 48.01 m2 |
| Pomieszczenie | Powierzchnia | |
| 0.1 | Pokój 1 | 9.03 m2 |
| 0.2 | Wiatrołap | 2.75 m2 |
| 0.3 | Pomieszczenie gospodarcze | 1.55 m2 |
| 0.4 | Łazienka | 5.68 m2 |
| 0.5 | Korytarz | 2.84 m2 |
| 0.6 | Pokój dzienny / aneks kuchenny | 32.2 m2 |
| SUMA: | 54.05 m2 |
| Pomieszczenie | Powierzchnia | |
| 1.1 | Pokój 1 | 18.12 m2 |
| 1.2 | Pokój 2 | 7.73 m2 |
| 1.3 | Pokój 3 | 8.19 m2 |
| 1.4 | Łazienka | 3.83 m2 |
| 1.5 | Korytarz | 5 m2 |
| 1.6 | Schody | 5.14 m2 |
| SUMA: | 48.01 m2 |
| Pomieszczenie | Powierzchnia | |
| 0.1 | Pokój 1 | 9.03 m2 |
| 0.2 | Wiatrołap | 2.75 m2 |
| 0.3 | Pomieszczenie gospodarcze | 1.55 m2 |
| 0.4 | Łazienka | 5.68 m2 |
| 0.5 | Korytarz | 2.84 m2 |
| 0.6 | Pokój dzienny / aneks kuchenny | 32.2 m2 |
| SUMA: | 54.05 m2 |
| Pomieszczenie | Powierzchnia | |
| 1.1 | Pokój 1 | 18.12 m2 |
| 1.2 | Pokój 2 | 6.97 m2 |
| 1.3 | Pokój 3 | 8.19 m2 |
| 1.4 | Łazienka | 4.69 m2 |
| 1.5 | Korytarz | 5 m2 |
| 1.6 | Schody | 5.14 m2 |
| SUMA: | 48.01 m2 |
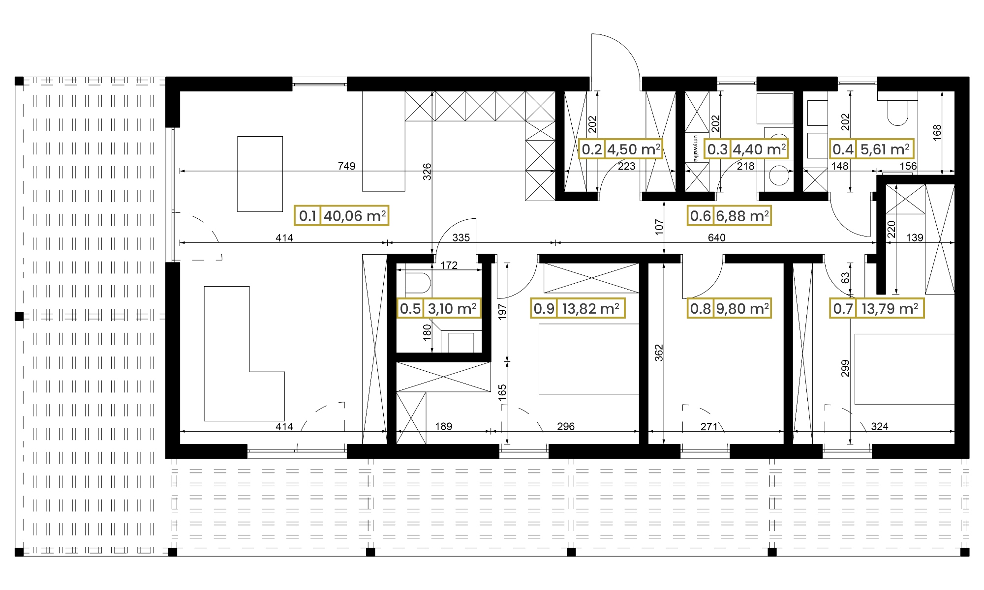
| Pomieszczenie | Powierzchnia | |
| 0.1 | Pokój dzienny / aneks kuchenny | 40.06 m2 |
| 0.2 | Wiatrołap | 4.5 m2 |
| 0.3 | Pomieszczenie gospodarcze | 4.4 m2 |
| 0.4 | Łazienka 1 | 5.61 m2 |
| 0.5 | Łazienka 2 | 3.1 m2 |
| 0.6 | Korytarz | 6.88 m2 |
| 0.7 | Pokój 1 + garderoba | 13.79 m2 |
| 0.8 | Pokój 2 | 9.8 m2 |
| 0.9 | Pokój 3 + garderoba | 13.82 m2 |
| SUMA: | 101.96 m2 |
| Pomieszczenie | Powierzchnia | |
| 0.1 | Pokój dzienny / aneks kuchenny | 40.06 m2 |
| 0.2 | Wiatrołap | 4.5 m2 |
| 0.3 | Pomieszczenie gospodarcze | 4.4 m2 |
| 0.4 | Łazienka 1 | 5.61 m2 |
| 0.5 | Łazienka 2 | 3.1 m2 |
| 0.6 | Korytarz | 6.88 m2 |
| 0.7 | Pokój 1 + garderoba | 13.79 m2 |
| 0.8 | Pokój 2 | 9.8 m2 |
| Pokój 3 + garderoba | 13.82 m2 | |
| SUMA: | 101.96 m2 |
| Pomieszczenie | Powierzchnia | |
| 0.1 | Pokój dzienny / aneks kuchenny | 40.06 m2 |
| 0.2 | Wiatrołap | 4.5 m2 |
| 0.3 | Pomieszczenie gospodarcze | 4.4 m2 |
| 0.4 | Łazienka 1 | 5.61 m2 |
| 0.5 | Łazienka 2 | 3.1 m2 |
| 0.6 | Korytarz | 6.88 m2 |
| 0.7 | Pokój 1 + garderoba | 13.79 m2 |
| 0.8 | Pokój 2 | 9.8 m2 |
| 0.9 | Pokój 3 + garderoba | 13.82 m2 |
| SUMA: | 101.96 m2 |
| Pomieszczenie | Powierzchnia | |
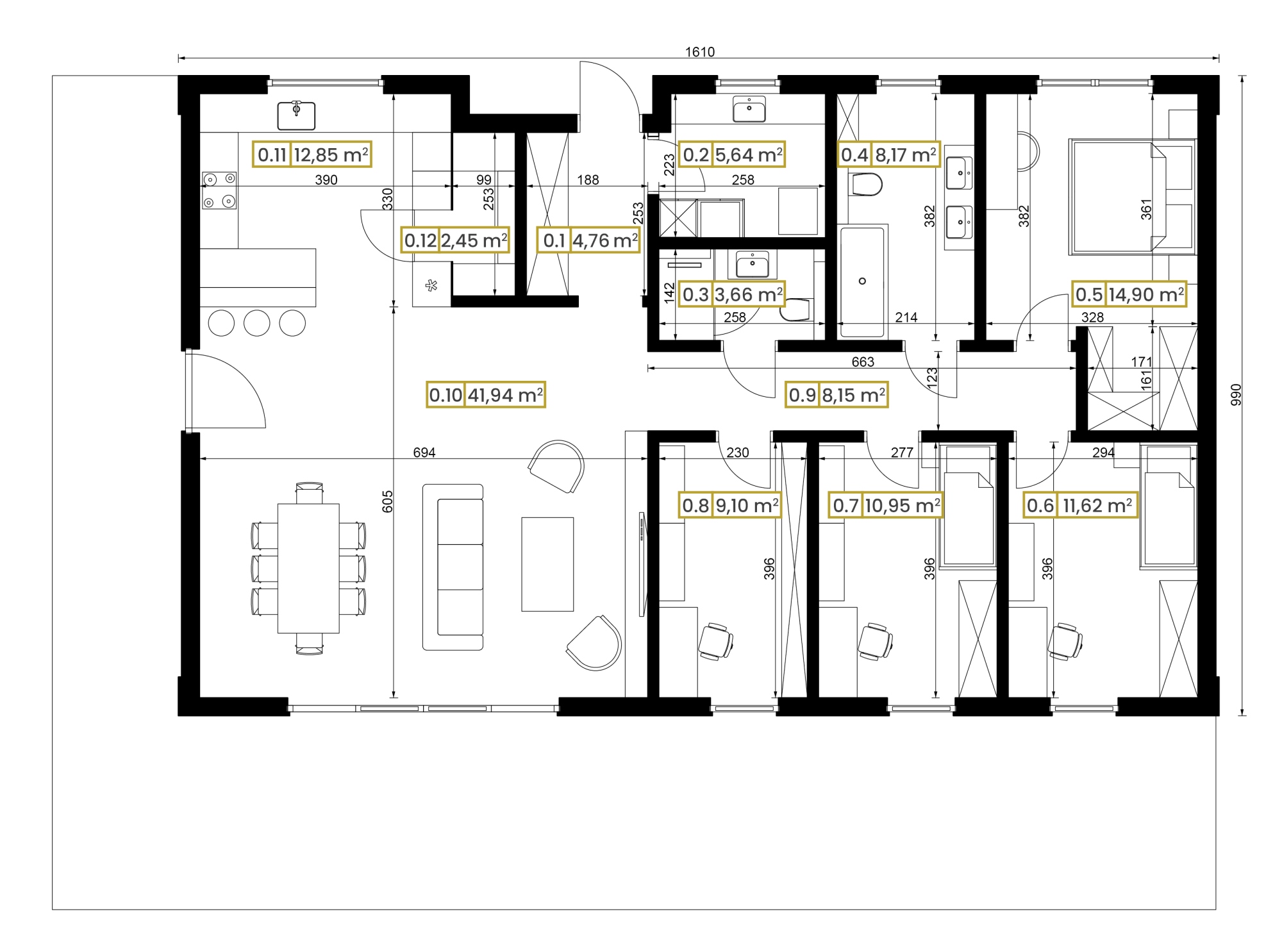
| 0.1 | Wiatrołap | 4.76 m2 |
| 0.2 | Pomieszczenie gospodarcze | 5.64 m2 |
| 0.3 | Łazienka 1 | 3.66 m2 |
| 0.4 | Łazienka 2 | 8.17 m2 |
| 0.5 | Sypialnia | 14.9 m2 |
| 0.6 | Pokój 1 | 11.62 m2 |
| 0.7 | Pokój 2 | 10.95 m2 |
| 0.8 | Pokój 3 | 9.1 m2 |
| 0.9 | Korytarz | 8.15 m2 |
| 0.10 | Salon z jadalnią | 41.94 m2 |
| 0.11 | Kuchnia | 12.85 m2 |
| 0.12 | Spiżarnia | 2.45 m2 |
| SUMA: | 134.19 m2 |
| Pomieszczenie | Powierzchnia | |
| 0.1 | Wiatrołap | 4.76 m2 |
| 0.2 | Pomieszczenie gospodarcze | 5.64 m2 |
| 0.3 | Łazienka 1 | 3.66 m2 |
| 0.4 | Łazienka 2 | 8.17 m2 |
| 0.5 | Sypialnia | 14.9 m2 |
| 0.6 | Pokój 1 | 11.62 m2 |
| 0.7 | Pokój 2 | 10.95 m2 |
| 0.8 | Pokój 3 | 9.1 m2 |
| 0.9 | Korytarz | 8.15 m2 |
| 0.10 | Salon z jadalnią | 41.94 m2 |
| 0.11 | Kuchnia | 12.85 m2 |
| 0.12 | Spiżarnia | 2.45 m2 |
| SUMA: | 134.19 m2 |
| Pomieszczenie | Powierzchnia | |
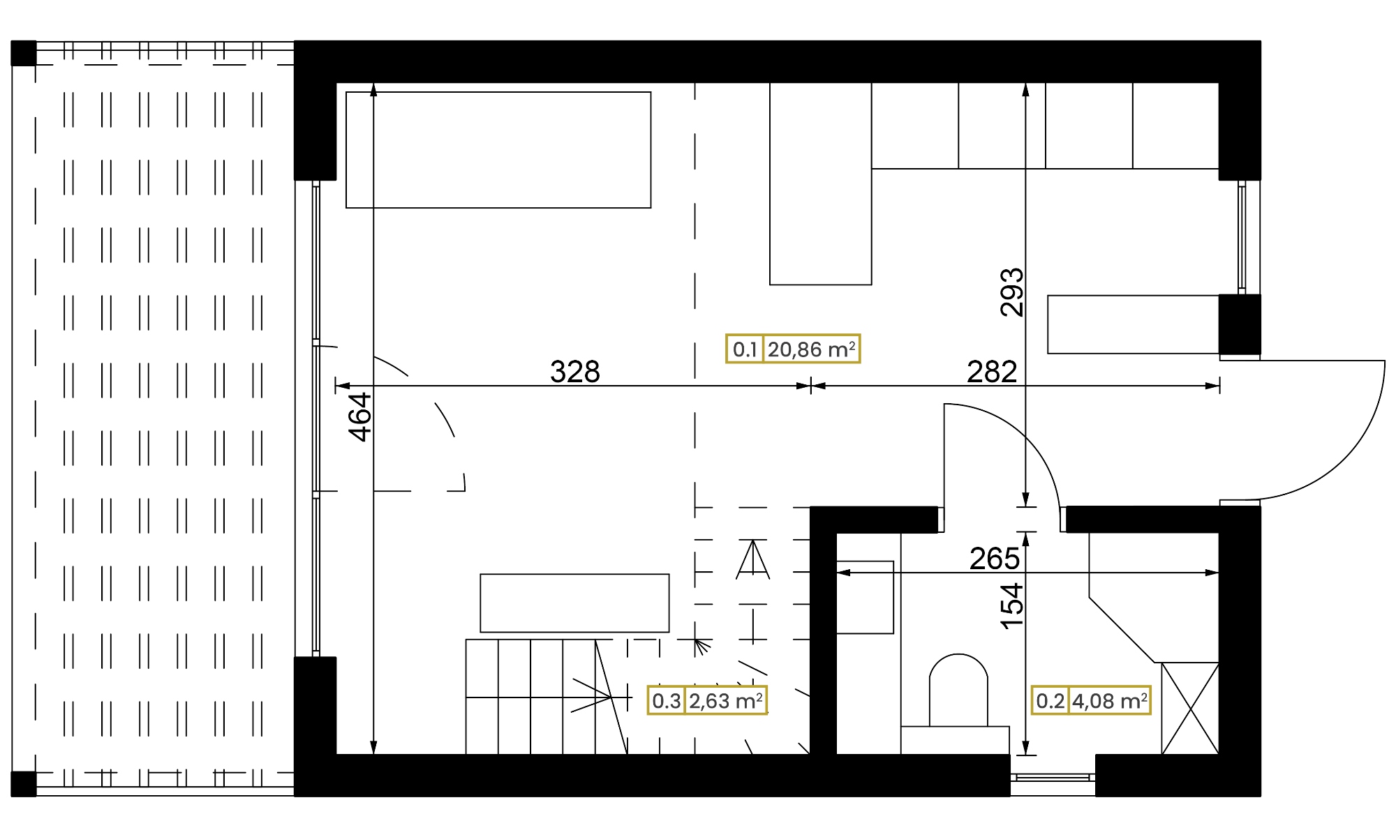
| 0.1 | Pokój dzienny / aneks kuchenny | 20.86 m2 |
| 0.2 | Łazienka | 4.08 m2 |
| 0.3 | Schody | 2.63 m2 |
| SUMA: | 27.57 m2 |
| Pomieszczenie | Powierzchnia | |
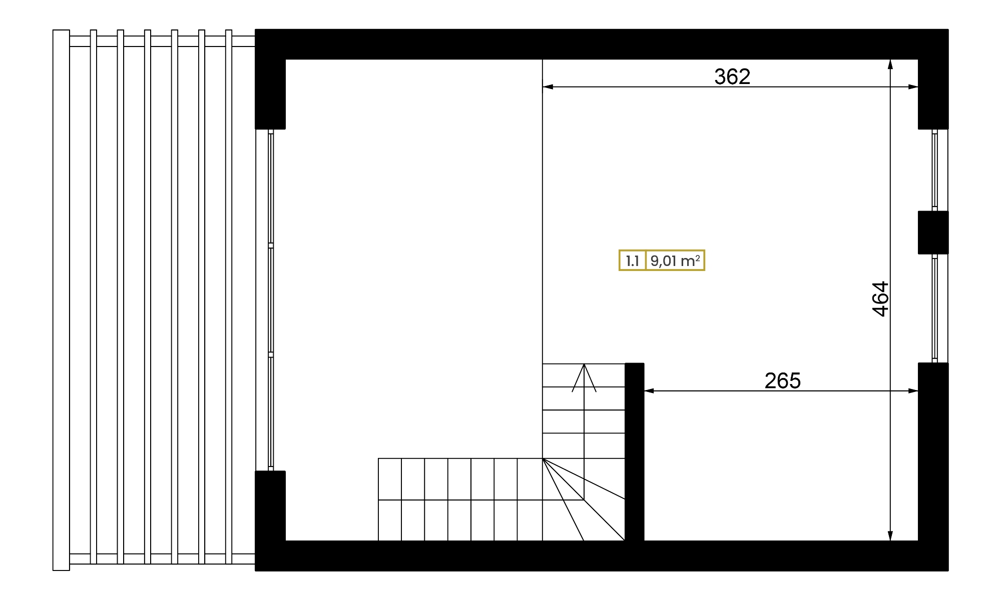
| 1.1 | Antresola | 9.01 m2 |
| Pomieszczenie | Powierzchnia | |
| 0.1 | Pokój dzienny / aneks kuchenny | 20.86 m2 |
| 0.2 | Łazienka | 4.08 m2 |
| 0.3 | Schody | 2.63 m2 |
| SUMA: | 27.57 m2 |
| Pomieszczenie | Powierzchnia | |
| 1.1 | Antresola | 9.01 m2 |
| SUMA: | 9.01 m2 |
| Pomieszczenie | Powierzchnia | |
| 0.1 | Pokój dzienny / aneks kuchenny | 20.86 m2 |
| 0.2 | Łazienka | 4.08 m2 |
| 0.3 | Schody | 2.63 m2 |
| SUMA: | 27.57 m2 |
| Pomieszczenie | Powierzchnia | |
| 1.1 | Antresola | 9.01 m2 |
| SUMA: | 9.01 m2 |
| Pomieszczenie | Powierzchnia | |
| 0.1 | Pokój dzienny / aneks kuchenny | 20.86 m2 |
| 0.2 | Łazienka | 4.08 m2 |
| 0.3 | Schody | 2.63 m2 |
| SUMA: | 27.57 m2 |
| Pomieszczenie | Powierzchnia | |
| 1.1 | Antresola | 9.01 m2 |
| SUMA: | 9.01 m2 |
Jesteśmy firmą specjalizującą się w budowie nowoczesnych domów szkieletowych, łącząc wiedzę i doświadczenie zdobyte w realizacji kilkudziesięciu inwestycji budowlanych na terenie całej Polski. Nasze projekty wyróżnia wysoka jakość wykonania, możliwość personalizacji oraz zastosowanie energooszczędnych, ekologicznych rozwiązań. Dzięki zaawansowanej technologii, a także sprawdzonym materiałom od renomowanych producentów, zapewniamy trwałość i komfort na lata, dbając jednocześnie o krótki czas realizacji Twojej inwestycji.




